查看: 990|回复: 3

[出售] 滨湖新城南区

[复制链接]

302

主题

330

回帖

794

积分

三室一厅

淮币
2296 个
威望
0 点
发表于 2021-3-4 15:10:32 | 显示全部楼层 |阅读模式 来自- 安徽省淮北市 移动
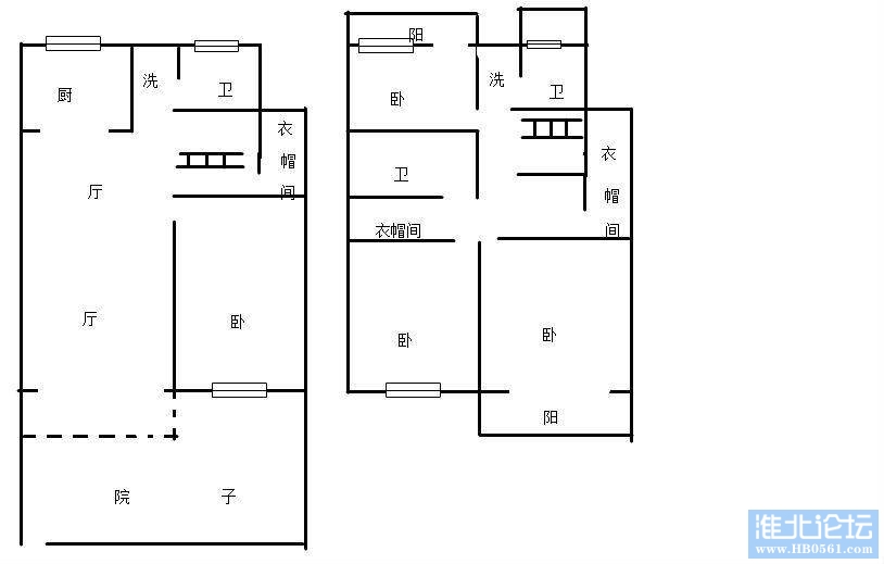
滨湖新城南区,150.8平方,12复式3个储藏室加一个大院子,160万,随时看房15155530825微信同步
151028dm00g017x1171v43.jpg
151028nhisis1tdb7cwaz7.jpg
151029z8y6zbz1b8gzfaef.jpg
151029ywzhagbyq4qymb1q.jpg
151030h4cw5ut5zrhyf8sw.jpg
151030f1j11krrprrql1lp.jpg
151031isdsd6ydtmtw27sj.jpg
151031quenm0vnd2ndfwws.jpg
151032q4le4wljziuguz8w.jpg
151032ht9ttd9f1dd99jf3.jpg
回复

使用道具 举报

1

主题

4

回帖

7

积分

露宿街头

淮币
34 个
威望
0 点
发表于 2021-3-6 21:33:53 | 显示全部楼层 来自- 安徽省淮北市 电信
可有院子
回复 支持 反对

使用道具 举报

302

主题

330

回帖

794

积分

三室一厅

淮币
2296 个
威望
0 点
 楼主| 发表于 2021-3-7 09:21:46 | 显示全部楼层 来自- 安徽省阜阳市阜南县 电信
~梦梦~ 发表于 2021-3-6 21:33
可有院子

有院子
回复 支持 反对

使用道具 举报

302

主题

330

回帖

794

积分

三室一厅

淮币
2296 个
威望
0 点
 楼主| 发表于 2021-3-8 22:50:00 | 显示全部楼层 来自- 安徽省合肥市 电信
~梦梦~ 发表于 2021-3-6 21:33
可有院子

可以加我微信,带你看房子
回复 支持 反对

使用道具 举报

您需要登录后才可以回帖 登录 | 立即注册

本版积分规则