联系我们
开启辅助访问
登录
立即注册
只需一步,快速开始
扫描二维码登录本站
手机号码,快捷登录
淮北论坛
淮北论坛首页
云创人才网
搜索
搜索
本版
用户
淮北论坛
»
淮北论坛
›
信息服务
›
房产中介
›
可上局小二中可贷款的电梯房房主急售68万 ...
返回列表
发新帖
查看:
762
|
回复:
2
[出售]
可上局小二中可贷款的电梯房房主急售68万
[复制链接]
19856108757
19856108757
当前离线
积分
2
1
主题
0
回帖
2
积分
露宿街头
露宿街头, 积分 2, 距离下一级还需 28 积分
露宿街头, 积分 2, 距离下一级还需 28 积分
淮币
10 个
威望
0 点
收听TA
发消息
加好友
发表于 2020-11-27 08:35:06
|
显示全部楼层
|
阅读模式
来自- 安徽省合肥市 电信
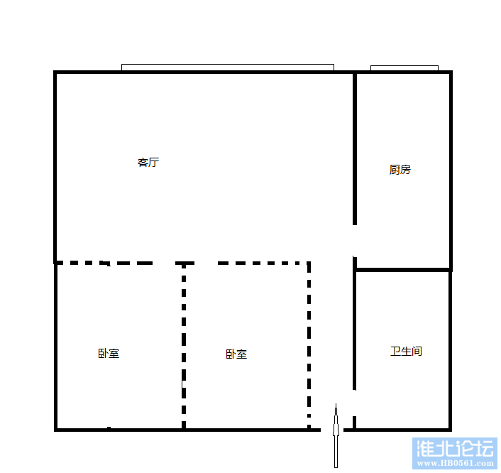
房源介绍:
【楼盘】:东方城市广场(东方汇)
【户型】: 一室一厅一厨一卫(可改成两室一厅)
【楼层】:24层
【面积】:63.78平米(房本面积)
【装修】:木地板白墙
【售价】:68万
【学校】:局小二中,名额没有用过.
【特点】:70年产权
看房热线:19856108757微信同步,加说明看房,中介勿扰。谢谢
客厅
客厅
卫生间
厨房
改后户型图
回复
使用道具
举报
香蕉牛奶-注销
该用户已被删除
发表于 2020-11-27 12:53:06
|
显示全部楼层
来自- 安徽省安庆市 电信
提示:
作者被禁止或删除 内容自动屏蔽
回复
支持
反对
使用道具
举报
lyc5151
lyc5151
当前离线
积分
7
4
主题
1
回帖
7
积分
露宿街头
露宿街头, 积分 7, 距离下一级还需 23 积分
露宿街头, 积分 7, 距离下一级还需 23 积分
淮币
27 个
威望
0 点
收听TA
发消息
加好友
发表于 2020-12-12 18:51:58
|
显示全部楼层
来自- 安徽省合肥市 电信
房产证的住房性质是公寓还是商品房?
回复
支持
反对
使用道具
举报
返回列表
发新帖
高级模式
B
Color
Image
Link
Quote
Code
Smilies
您需要登录后才可以回帖
登录
|
立即注册
本版积分规则
发表回复
回帖并转播
回帖后跳转到最后一页